Cargando...



Simulator
Rivera 5740

Ubicación Villa Urquiza - CABA
Superficie 1500 m2
Detalle 7 pisos de viviendas + Cocheras + Estudios + Local
Año 2020

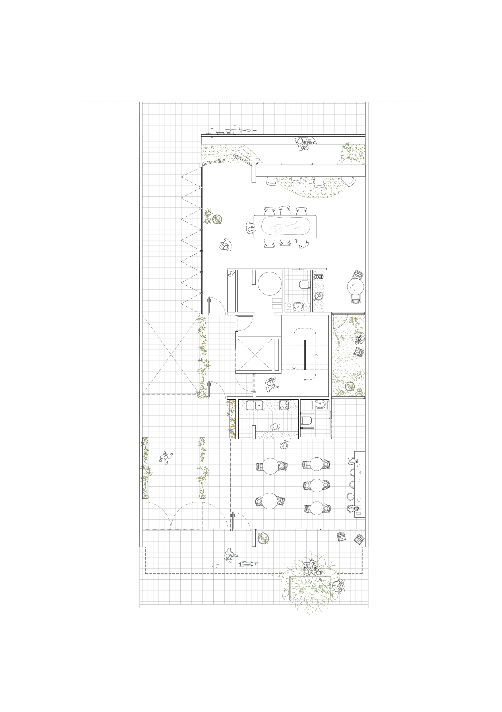
Rivera 5740 es nuevo proyecto a construirse en Villa Urquiza, ubicado en una zona residencial, dentro de un centro consolidado, vibrante y en constante crecimiento. Situado sobre una de las clásicas calles y rodeado de las principales avenidas. Accesible por automóvil, tren, subte, colectivos y bici sendas. Muy cerca de centros comerciales, deportivos y recreativos. Implantado en un amplio lote de 12m x 40m y con una excelente orientación, el proyecto aprovecha estas condiciones para lograr luminosidad y ventilación en todos sus ambientes, en los 7 pisos.

La planta baja, en una unión con la constante vida social del barrio, tendrá un local gastronómico y oficinas de diseño, además de cocheras. En Primer piso, vinculado con el ritmo diurno de la planta baja, habrá Estudios individuales y espacios de trabajo colectivo. En los pisos más elevados, las unidades de 2 ambientes serán flexibles y de variable armado. En el quinto piso, 2 unidades en semipiso, de 5 ambientes completan las opciones de vivienda, logrando así, un edificio versátil, que se brinda a las variables demandas de las familias y sus cambios.

Todas las unidades cuentan con un núcleo central de servicios, permitiendo que los ambientes principales obtengan mejor ventilación e iluminación y distintas posibilidades de armado. El proyecto busca ser un conjunto de espacios dinámicos, propios de la vida diaria en la ciudad, dentro de un barrio activo de día y de noche.

Amplios balcones y una propuesta de vegetación incluida en su fachada, proponen un vínculo natural y amigable con la vida de barrio.

ARQCO + estudio asociado BAAG

descargá el brochure
Rivera 5740 | ARQCO - arquitectura colectiva
Rivera 5740 | ARQCO - arquitectura colectiva
Rivera 5740 | ARQCO - arquitectura colectiva
Rivera 5740 | ARQCO - arquitectura colectiva
Rivera 5740 | ARQCO - arquitectura colectiva
Rivera 5740 | ARQCO - arquitectura colectiva
Rivera 5740 | ARQCO - arquitectura colectiva